E-274aLDom parterowy z 4 sypialniami

Zamów

cena: 5 890 PLN dostępność: 35 dni

Podobne projekty

Projekt domu E-274a L Nowość Dom parterowy z 4 sypialniami

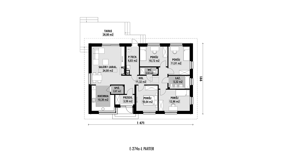
Projekt domu o prostej konstrukcji i wygodnym programie funkcjonalnym. Dom mimo stosunkowo niewielkiej powierzchni, może być przeznaczony nawet dla pięcioosobowej rodziny. Sypialnia rodziców jest wydzielona akustycznie od pokoi dziecięcych. Dla dzieci przeznaczono trzy sypialnie, z których dwie są bliźniacze. Część wspólna domu to duża i wygodna kuchnia ze spiżarnią oraz dobrze doświetlony salon z miejscem na stół. W domu przewidziano łazienkę z wanną i prysznicem oraz dodatkowe wc dla gości. Pomieszczenie techniczne jest dostępne zarówno z wnętrza domu, jak i z ogrodu. Wydzielono w nim aneks na pralkę. Dodatkową przestrzeń do magazynowania stanowi poddasze dostępne za pomocą rozkładanych schodów strychowych.

Powierzchnia użytkowa 105,6 m²
Powierzchnia netto 111,2 m²
Powierzchnia zabudowy 145,8 m²
Strych 82,8 m²
Kotłownia 5,8 m²
Kubatura 327,0 m³
Wysokość budynku 7,6 m
Wysokość do okapu gzymsu 3,3 m
Powierzchnia dachu 215,0 m²
Kąt nachylenia dachu 35 °
Minimalne wymiary działki 22,7 x 18,9 m
Stan surowy zamknięty 294 500 PLN
Instalacje wewnętrzne 58 300 PLN
Wykończenie 135 000 PLN
Koszt budowy 487 800 PLN
Koszt budowy sys. gospodarczym 415 600 PLN

UWAGA: Podana cena promocyjna jest najniższą w okresie 30 dni przed wprowadzeniem obniżki.

ZAMÓW PROJEKT Z PROMOCJĄ !!!

Klientom indywidualnym kupującym ten projekt (naszego autorstwa) na stronie naszej pracowni www.e-domy.pl, oferujemy w promocji:

1. KOSZTORYS BUDOWLANY i PRZEDMIAR  ROBÓT ZA 129zł
2. TABLICA I DZIENNIK BUDOWY ZA 69zł
3. DODATKOWY EGZEMPLARZ PROJEKTU ARCHITEKTONICZNO-BUDOWLANEGO ZA 1zł
4. PAKIET DODATKÓW DO PROJEKTU (o łącznej wartości ok. 1500zł) ZA 69zł

KUP PROJEKT U AUTORÓW Z GWARANCJĄ NAJNIŻSZEJ CENY

Jeśli zastanawiają się Państwo jeszcze nad wyborem projektu, jest możliwość pobrania naszego katalogu 2019 w wersji elektronicznej  pobierz katalog (ok. 80mb) lub można zobaczyć katalog on-line: https://bit.ly/2KjRw6G.

UWAGA: Koszty budowy podane na naszej stronie są kosztami szacunkowymi, określonymi na podstawie średnich, ogólnopolskich cen netto materiałów budowlanych i robocizny. W wycenie przyjęliśmy podstawowy standard wykończenia wewnętrznego i zewnętrznego. Ostateczne koszty inwestycji mogą się różnić w zależności od zastosowanych materiałów, kosztów robocizny dla danego regionu kraju, oraz przyjętego standardu wykończenia (zwłaszcza elewacji zewnętrznych). Koszty stanu surowego i wykończenia zewnętrznego są podane na podstawie obliczeń z kosztorysu budowlanego, natomiast koszt instalacji wewnętrznych szacowany jest na podstawie uśrednionych wskaźników, proporcjonalnie do powierzchni netto budynku.

Koszt podany na stronie dotyczy stanu deweloperskiego, a jako wykończenie określiliśmy (upraszczając) te elementy, które różnią stan surowy zamknięty od stanu deweloperskiego. Zatem "wykończenie" to w skrócie: tynki wewnętrzne, posadzki z ociepleniem (bez ostatniej warstwy podłogowej), wykończenie ścian zewnętrznych (ocieplenie, tynki oraz okładziny zewnętrzne).

UWAGA: Wycena szacunkowa nie zawiera wykończenia warstwy wykończeniowej posadzek (podłóg), tarasu, schodów zewnętrznych, drzwi wewnętrznych, łazienek, białego montażu oraz wykończenia wnętrza ponieważ jego koszt jest zależny od przyjętego standardu i rozbieżności mogłyby być zbyt duże. Podane na stronie koszty budowy są cenami netto. W przypadku zlecenia budowy firmie wykonawczej (kompleksowa usługa budowlana + materiały) należy doliczyć 8% VAT.

Koszty budowy tzw. systemem gospodarczym zakładają wykonanie pewnej ilości prac budowlanych we własnym zakresie oraz własną koordynację zakupów, w tym negocjowanie cen. Hurtownie budowlane często udzielają rabatów, a jeśli zakupów dokonuje firma wykonawcza, czasem część rabatu zachowuje dla siebie.

Technologia

Prosimy o zapoznanie się z rysunkami szczegółowymi (PDF).

Informację dotyczącą zakresu możliwych do wprowadzenia zmian w projektach, w ramach adaptacji przedstawiamy w zakładce zmiany w projekcie.

UWAGA: Nasze biuro nie wprowadza zmian w projektach. Nie udostępniamy wersji elektronicznej projektów.
Wszystkie nasze projekty są zgodne z wymaganiami aktualnych Warunków Technicznych WT2022 ze zmianami.
 
Ściany 25cm ceramika + 18cm styropian*
Strop wylewany żelbetowy*
Pokrycie dachowe dachówka cementowa*
Ocieplenie posadzki na gruncie 20cm styropian
Ocieplenie dachu 25-30cm wełna mineralna
Stolarka okienna drewniana*
Wykończenie zewnętrze kamień, płytki klinkierowe lub drewno
Ogrzewanie gazowe, grzejniki*
Wentylacja mechaniczna
Energooszczędność EP < 70 kWh/(rok*m2)

*) UWAGA: zmianę materiałów, stropu itp. można wykonać w ramach adaptacji projektu u architekta działającego na terenie konkretnej inwestycji.

Dodatki

Pakiety można zamówić zaznaczając odpowiednią pozycję na liście "DOSTĘPNE DODATKI" przy zamówieniu projektu w zakładce ZAMÓW PROJEKT.

Dodatki można też dokupić później, po zamówieniu projektu. Informacje na ten temat są dostępne tutaj.

Komentarze

Aby dodać opinię wypełnij poniższy formularz.

Do pobrania

Przeglądaj i pobieraj szczegółowe rysunki pokazowe projektu z dokumentacji technicznej. UWAGA: Załączone rysunki stanowią wyłączną własność firmy E-DOMY.PL i nie mogą stanowić podstawy do opracowania projektów indywidualnych.

Schowaj
0 projektów
w Twojej teczce
  • pow. użytkowa
  • min. szerokość działki
  • kondygnacje
Pokaż rzuty